Группа безопасности: Защита и стабильность вашей отопительной системы


Современные системы отопления, будь то автономные газовые котлы или сложные многоконтурные установки, требуют не только эффективной работы, но и максимальной безопасности. Группа безопасности является одним из ключевых элементов, обеспечивающих стабильное…

Отопление на бойлерах: все, что нужно знать


Выбор системы отопления для дома – это ответственное решение, которое напрямую влияет на комфорт проживания и размер коммунальных платежей. Традиционные системы, такие как газовые котлы, безусловно, имеют свои преимущества, однако…

Промывка системы отопления в частном доме


Система отопления – это сердце любого дома, особенно в холодное время года. Ее бесперебойная работа обеспечивает комфорт и уют, позволяя нам наслаждаться теплом в самые суровые морозы. Однако, как и…

Выбор оптимальной системы отопления для дома или квартиры


Выбор оптимальной системы отопления для дома или квартиры – задача, требующая внимательного подхода и учета множества факторов. От правильного выбора зависит не только комфорт проживания в холодное время года, но…

Бойлер для системы отопления: типы, принцип работы и критерии выбора


Бойлер для системы отопления – это ключевой элемент‚ обеспечивающий комфорт и тепло в вашем доме. Он представляет собой устройство‚ предназначенное для нагрева воды‚ которая затем циркулирует по радиаторам или системе…

Отопление двухэтажного частного дома своими руками: пошаговое руководство


Обеспечение комфортной температуры в доме, особенно в холодное время года, является важной задачей для каждого владельца частного дома․ Выбор и монтаж системы отопления – это ответственный процесс, требующий тщательного планирования…

Как выбрать радиатор отопления: полное руководство


Современные системы отопления – это сложные инженерные конструкции, обеспечивающие комфортную температуру в наших домах в холодное время года. Одним из ключевых элементов этой системы, безусловно, является радиатор. Выбор правильного радиатора…

Подключение теплого пола к системе отопления: Пошаговая инструкция


Система теплого пола – это комфортное и эффективное решение для обогрева помещений, обеспечивающее равномерное распределение тепла и создающее уютную атмосферу. Подключение теплого пола к системе отопления позволяет использовать существующий источник…

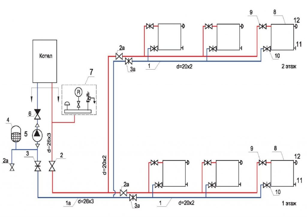
Двухтрубная система отопления: проектирование и монтаж


Планирование системы отопления для собственного дома – задача ответственная и требующая внимательного подхода. Двухтрубная система отопления, пожалуй, один из самых популярных и эффективных вариантов, обеспечивающих равномерное распределение тепла по всем…

Система Принудительного Отопления: Принцип Работы и Компоненты Схемы


Система принудительного отопления – это современное и эффективное решение для обогрева жилых и коммерческих помещений. В отличие от гравитационных систем, где циркуляция теплоносителя происходит естественным образом, в системах с принудительной…